Cabinet Bedin Immobilier
PESSAC
13 avenue Pasteur 33600 Pessac
Description
Appartement avec terrasse
Appartement avec terrasse.
Vous souhaitez vivre au calme en plein centre de Pessac ? Cet appartement a toutes les qualités pour cela. Avec sa terrasse protégée par une haie, sa luminosité, et son agencement pratique, il offre tout ce que l'on peut souhaiter. Un état impeccable, une isolation excellente, et de beaux volumes au sein d'une résidence haut de gamme récemment rénovée. La chambre est vaste et lumineuse, le séjour-cuisine-salle à manger offre une belle circulation qui se prolonge sur la terrasse végétalisée, et même la salle d'eau avec douche et grande vasque dispose d'un espace particulièrement agréable. Rare à Pessac, ce lieu peut servir de résidence principale, de pied à terre, ou être facilement loué sur le long-terme ou en meublé. Un parking avec carport et un local à vélos ou motos, tous deux sécurisés, complètent ce bien d'exception.
Les informations sur les risques auxquels ce bien est exposé sont disponibles sur le site Géorisques : www.georisques.gouv.fr
(179 000 € hors honoraires)
En détail
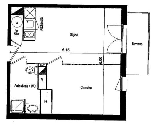
- Surface Carrez : 35,5 m²
- Surface : 36,0 m²
- Chambre : 11,7 m²
- Entrée : 2,8 m²
- Salle de bains / douche / WC : 4,9 m²
- Séjour-cuisine US : 16,2 m²
- Terrasse : 4,3 m²
- Taxe foncière : 806,00 €
- Surfaces approximatives ; Document non contractuel
Cabinet Bedin Immobilier
Notre agence à Pessac
Le Cabinet Bedin vous propose un réseau d'agences immobilières sur Bordeaux et sa métropole, rive gauche ainsi que rive droite, et partout en gironde.
Découvrir les biens
Diagnostic énergétique
Montant estimé des dépenses annuelles d’énergie pour un usage standard : entre 540 et 770 Euros/an (année de référence 2023)
Idéalement situé au cœur de Pessac Centre, à proximité immédiate du tram, des commerces et des écoles, cet appartement de 2 pièces séduit par son calme absolu et sa terrasse sans vis-à-vis. Dans une résidence récente et sécurisée, il offre une surface d’environ 36 m² avec un séjour lumineux, une cuisine ouverte moderne, une chambre spacieuse et une salle d’eau soignée. Parfaitement entretenu, il bénéficie d’un chauffage individuel électrique performant, d’une excellente isolation et d’un parking extérieur sécurisé sous carport.
Ce bien rare, libre à la vente, constitue une opportunité idéale pour un premier achat, un investissement locatif ou un pied-à-terre à Pessac, à deux pas du centre et de la gare.
Cette annonce immobilière correspond à des personnes en recherche appartement Pessac. Ce bien immobilier propose une surface de 36 m². , d'une surface carrez de 35,5 m² dispose de 1 chambre. Dans le détail, cet Appartement comprend les pièces ou éléments suivants: chambre de 11.7 m² , entree de 2.8 m² , salle de bain toilettes de 4.9 m² , séjour-cuisine us de 16.2 m² , terrasse de 4.3 m²
Le quartier Pessac centre *
Pessac centre est un quartier de 3 370 habitants de la ville de Pessac dont 37 % des habitants sont propriétaires.
Bourg est un quartier calme avec 54 % d'appartements et 46 % de maisons.
Il y a 40 commerces de proximité dont des commerces, des restaurants et un hypermarché.
Le quartier est situé à 18 minutes en voiture de Bordeaux ou 24 minutes en transports en commun.
Biens similaires à vos critères

Achat Appartement 5 pieces Pessac 4 chambres
PESSAC PONTET
Réf: 7-4830
223 500 €

Achat Appartement T4 Pessac 3 chambres
PESSAC LE MONTEIL
Réf: 44-3572
429 000 €