image/svg+xml Maison A Vendre Gujan Mestras 5 pieces 4 chambres | Idéalement située dans

Achat Maison 5 pieces Gujan Mestras 4 chambres

GUJAN Mestras

Réf: 16-4602

  • 126,0 m²
  • 5 pièces
  • 4 chambres
  • Garage

558 600 € *

Cabinet Bedin Immobilier
GUJAN MESTRAS

71-73 cours De la république 33470 Gujan mestras

Description

GUJAN-MESTRAS

Idéalement située dans le quartier recherché de la gare, à proximité immédiate des commerces, des ports et de l’ensemble des commodités, cette maison contemporaine de plain-pied, en parfait état, saura vous séduire par ses volumes et sa luminosité. Le porche d'entrée dessert un vaste salon-séjour de 50 m², baigné de lumière, ouvert sur le jardin. La maison dispose d’une grande cuisine entièrement équipée, ainsi que d’une buanderie, offrant un confort de vie optimal. L’espace nuit, bien distinct, se compose de quatre chambres lumineuses, toutes dotées de placards intégrés, d’une salle d’eau et d’un WC indépendant. Un garage carrelé et isolé de 24 m², attenant à la maison et équipé d’un point d’eau, vient compléter les prestations.
À l’extérieur, vous profiterez d’un jardin arboré, parfaitement exposé, idéal pour les beaux jours. Une dépendance ancienne bâtisse offre un fort potentiel de réhabilitation en logement indépendant, atelier d’artiste ou espace professionnel. Un chai de 13 m², dédié au rangement du matériel de jardin, vélos complète cet ensemble. La parcelle dispose également d’un emplacement de stationnement, et d'un terrain entièrement clôturé. Située dans un environnement calme tout en bénéficiant d’un emplacement privilégié, cette maison réunit des atouts rares sur le secteur. Une opportunité à découvrir sans tarder !


Les informations sur les risques auxquels ce bien est exposé sont disponibles sur le site Géorisques : www.georisques.gouv.fr

Exclusivité Cabinet Bedin

Meilleur prix - Conciergerie - Financement

En détail

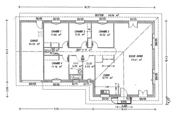
  • Surface terrain : 974,0 m²
  • Buanderie : 5,3 m²
  • Chai : 13,0 m²
  • Chambre : 11,1 m²
  • Chambre 2 : 9,3 m²
  • Chambre 3 : 10,5 m²
  • Chambre 4 : 11,2 m²
  • Couloir : 9,1 m²
  • Cuisine : 12,8 m²
  • Dépendance : 32,0 m²
  • Garage : 24,0 m²
  • Salle d'eau : 6,0 m²
  • Séjour/salle à manger : 49,6 m²
  • WC : 2,0 m²
  • Taxe foncière : 2 090,00 €
  • Surfaces approximatives ; Document non contractuel

Cabinet Bedin Immobilier

Notre agence à Gujan mestras


Le Cabinet Bedin est présent partout sur le bassin d'Arcachon, du Cap Ferret à Arcachon en passant par Claouey, Andernos, Arès, Audenge, Biganos, Gujan et La Teste. Un réseau d'agences immobilières unique à votre service sur tout le Bassin.



Découvrir les biens

Plan de financement

Taux Premier

Mensualités :

Diagnostic énergétique

DPE

Montant estimé des dépenses annuelles d’énergie pour un usage standard : entre 1334 et 1806 Euros/an (année de référence 2023)

Maison plain-pied 4 chambres avec jardin, garage et dépendance – Quartier gare

Située dans le quartier recherché de la gare, à proximité immédiate des commerces, du port et de toutes les commodités, découvrez cette maison contemporaine de plain-pied en excellent état, offrant de beaux volumes et une belle luminosité.

La maison s’ouvre sur un vaste salon-séjour de 50 m², lumineux et convivial, avec un accès direct au jardin. La cuisine, spacieuse et entièrement équipée, est complétée par une buanderie, offrant un espace fonctionnel et pratique au quotidien.

L’espace nuit, bien séparé de la pièce de vie, se compose de quatre chambres lumineuses avec placards intégrés, d’une salle d’eau et d’un WC indépendant.

Un garage attenant de 24 m², carrelé et isolé, avec point d’eau, vient compléter les prestations de cette maison.

À l’extérieur, vous profiterez d’un jardin arboré et bien exposé, idéal pour profiter des beaux jours en toute tranquillité.

La propriété dispose également d’une dépendance, ancienne bâtisse pleine de charme, offrant un fort potentiel de réhabilitation en logement indépendant, atelier ou espace professionnel.

Un chai de 13 m² permet le rangement du matériel de jardin et des vélos. La parcelle comprend également un emplacement de stationnement et un terrain entièrement clôturé.

Dans un environnement calme tout en étant proche des commerces, de la gare et du port, cette maison avec jardin et dépendance représente une opportunité rare sur le secteur.
En exclusivité au Cabinet Bedin, Cette annonce immobilière correspond à des personnes en recherche maison Gujan Mestras. Ce bien immobilier propose une surface de 126 m². Cette maison construite sur un terrain de 974 m² dispose de 4 chambres. Dans le détail, cette Maison comprend les pièces ou éléments suivants: buanderie de 5.3 m² , chai de 13.0 m² , chambre de 11.1 m² , chambre de 9.3 m² , chambre de 10.5 m² , chambre de 11.2 m² , dégagement de 9.1 m² , cuisine de 12.8 m² , dependance de 32.0 m² , garage de 24.0 m² , douche de 6.0 m² , salle a manger sejour de 49.6 m² , toilettes de 2.0 m²

Le quartier Centre-ville *

Le Centre-ville GUJAN MESTRAS est un quartier de Gujan-Mestras.

Biens similaires à vos critères

Achat Maison 6 pièces Le Teich 4 chambres

Achat Maison 6 pièces Le Teich 4 chambres

LE TEICH Centre Ville

Réf: 26-3256

556 500 €

Achat Maison 6 pièces Le Teich 4 chambres
Achat Maison 4 pieces Gujan Mestras 3 chambres

Achat Maison 4 pieces Gujan Mestras 3 chambres

GUJAN LA HUME

Réf: 15-5691

588 000 €

Achat Maison 4 pieces Gujan Mestras 3 chambres
Vente Maison 6 pieces Gujan Mestras 4 chambres

Vente Maison 6 pieces Gujan Mestras 4 chambres

GUJAN MEYRAN

Réf: 17-4111

610 510 €

Vente Maison 6 pieces Gujan Mestras 4 chambres

Certaines fonctionnalités de ce site s’appuient sur des services proposés par des sites tiers. Ces fonctionnalités déposent des cookies permettant notamment à ces sites de tracer votre navigation. Ces cookies ne sont déposés que si vous donnez votre accord. Vous pouvez vous informer sur la nature des cookies déposés, les accepter ou les refuser.

Veuillez noter que GoogleAnalytics est intégré par défaut (outil de statistiques de navigation), cependant, sans votre consentement sur le Cookie "Google", votre IP est anonymisée.

Cabinet Bedin
En cas de refus, le site ne fonctionnera pas de manière optimale :
  • - Possibilité de mettre des annonces en favoris
  • - Utilisation du processus d'estimation avec l'enregistrement de l'adresse renseignée
Ciblage publicitaire, statistiques de navigation et affichage des cartes (Google Maps)
Youtube
Facebook
Ciblage publicitaire et statistiques de navigation
Partage social

N'oubliez pas de cliquer sur le bouton "Enregistrer" pour valider votre choix

Enregister mes choix
Cabinet Bedin Immobilier