image/svg+xml Vente Appartement Toulouse 3 pieces 2 chambres | MONTAUDRAN T3 très récent

Achat Appartement 3 pieces Toulouse 2 chambres

TOULOUSE-Montaudran Sud

Réf: 63-339

  • 63,9 m²
  • 3 pièces
  • 2 chambres
  • 1 salle de bain
  • Parking ss-terrain

225 000 € *

Cabinet Bedin Immobilier
TOULOUSE DEMOISELLES

20 avenue Saint-exupéry 31400 Toulouse

Description

MONTAUDRAN T3 très récent calme proche métro

MONTAUDRAN T3 très récent calme proche métro.
Appartement T3 avec terrasse au 2ème étage – situé à proximité du CNES / ENAC / bâtiment B612 et de la piste des géants à Toulouse

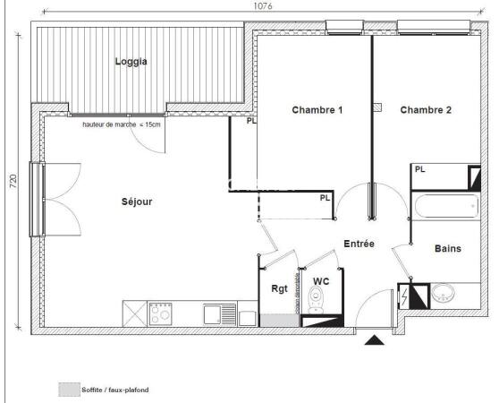
Situé dans une résidence moderne et arborée de 2021, ce T3 de 63,88 m² offre un cadre de vie agréable et fonctionnel.

Son séjour lumineux de 26 m², avec cuisine équipée, bénéficie d’une double exposition sud-ouest et s’ouvre sur une terrasse de 9,43 m², idéale pour profiter des beaux jours.

L’espace nuit comprend deux chambres avec placards intégrés (12,5 m² et 10,5 m²), une salle de bain de 4,61 m², un WC indépendant et un cellier pour plus de praticité.

Un hall d’entrée spacieux (7,6 m²) vient compléter ce bien parfaitement agencé.

Niché dans une résidence calme, sécurisée et entourée de verdure, l’appartement dispose également d’une place de parking privative en sous-sol (1 voiture + 1 moto).

Un bien récent, aux prestations soignées, idéal pour une résidence principale ou un investissement locatif.

Visite virtuelle sur demande ou appelez-nous pour organiser une visite.
Contactez-nous au 05 34 31 00 00 ou au 05 34 66 01 01


Les informations sur les risques auxquels ce bien est exposé sont disponibles sur le site Géorisques : www.georisques.gouv.fr

En détail

  • Surface Carrez : 63,9 m²
  • Surface : 63,9 m²
  • Chambre : 12,5 m²
  • Chambre 2 : 10,5 m²
  • Dressing : 1,4 m²
  • Entrée : 7,6 m²
  • Parking ss-terrain : Oui
  • Salle de bains : 4,6 m²
  • Séjour-cuisine US : 26,0 m²
  • Terrasse couverte : 9,4 m²
  • WC : 1,1 m²
  • Charges moyennes par an : 1 200,00 €
  • Taxe foncière : 1 309,00 €
  • Surfaces approximatives ; Document non contractuel

Cabinet Bedin Immobilier

Notre agence à Toulouse demoiselles


Le Cabinet Bedin c'est un réseau de 13 agences immobilières à Toulouse et métropole. Exigez le meilleur de l'immobilier toulousain avec nous.



Découvrir les biens

Plan de financement

Taux Premier

Mensualités :

Diagnostic énergétique

DPE

Montant estimé des dépenses annuelles d’énergie pour un usage standard : entre 710 et 1010 Euros/an (année de référence 2023)

Appartement T3 à Toulouse avec terrasse et parking – 63,88 m² dans résidence récente

Découvrez ce T3 lumineux de 63,88 m² au 2? étage d’une résidence sécurisée et arborée (2021). Il offre un séjour de 26 m² avec cuisine équipée, double exposition sud-ouest et terrasse de 9,43 m².

L’espace nuit comprend deux chambres avec placards, une salle de bain, un WC indépendant, un cellier et une entrée spacieuse. Une place de parking privative complète ce bien.

Situé dans un quartier calme proche des commerces, écoles et transports, ce T3 est idéal pour résidence principale ou investissement locatif.

L’espace nuit comprend :

Deux chambres avec placards intégrés (12,5 m² et 10,5 m²),

Une salle de bain moderne de 4,61 m²,

Un WC indépendant,

Un cellier (1,39 m²) pratique pour le rangement,

Une entrée spacieuse de 7,6 m².

Une place de parking privative complète ce bien, situé dans une résidence sécurisée et entourée de verdure.

L’appartement bénéficie d’un emplacement privilégié à Toulouse, dans un environnement calme tout en restant proche des commerces, écoles et transports en commun.

Ce T3 récent avec terrasse et parking à Toulouse 31400 est une opportunité idéale pour une résidence principale ou un investissement locatif.

Profitez de la visite virtuelle de ce bien sur notre site web ou appelez-nous pour organiser une visite.
Cette annonce immobilière correspond à des personnes en recherche appartement Toulouse. Ce bien immobilier propose une surface de 63,9 m². , d'une surface carrez de 63,9 m² dispose de 2 chambres. Dans le détail, cet Appartement comprend les pièces ou éléments suivants: chambre de 12.5 m² , chambre de 10.5 m² , dressing de 1.4 m² , entree de 7.6 m² , parking ss-terrain de m² , salle de bain de 4.6 m² , séjour-cuisine us de 26.0 m² , terrasse couverte de 9.4 m² , toilettes de 1.1 m²

Le quartier L'Ormeau - Montaudran *

L'Ormeau - Montaudran est un quartier de 14 020 habitants de la ville de Toulouse dont 36 % des habitants sont propriétaires.
L'Ormeau - Montaudran est un quartier calme avec 79 % d'appartements et 21 % de maisons.
Il y a 230 commerces de proximité dont des commerces, des restaurants et un hypermarché.
Il y a de nombreux espaces verts.

Biens similaires à vos critères

Achat Appartement T2 Toulouse 1 chambre
Exclusivité

Achat Appartement T2 Toulouse 1 chambre

TOULOUSE-Pont des Demoiselles

Réf: 53-802

231 750 €

Achat Appartement T2 Toulouse 1 chambre
Achat Appartement 2 pièces Toulouse 1 chambre
Exclusivité

Achat Appartement 2 pièces Toulouse 1 chambre

TOULOUSE-Pont des Demoiselles

Réf: 53-801

231 750 €

Achat Appartement 2 pièces Toulouse 1 chambre
Achat Appartement 2 pieces Toulouse 1 chambre
Exclusivité

Achat Appartement 2 pieces Toulouse 1 chambre

TOULOUSE-Pont des Demoiselles

Réf: 53-804

209 720 €

Achat Appartement 2 pieces Toulouse 1 chambre

Certaines fonctionnalités de ce site s’appuient sur des services proposés par des sites tiers. Ces fonctionnalités déposent des cookies permettant notamment à ces sites de tracer votre navigation. Ces cookies ne sont déposés que si vous donnez votre accord. Vous pouvez vous informer sur la nature des cookies déposés, les accepter ou les refuser.

Veuillez noter que GoogleAnalytics est intégré par défaut (outil de statistiques de navigation), cependant, sans votre consentement sur le Cookie "Google", votre IP est anonymisée.

Cabinet Bedin
En cas de refus, le site ne fonctionnera pas de manière optimale :
  • - Possibilité de mettre des annonces en favoris
  • - Utilisation du processus d'estimation avec l'enregistrement de l'adresse renseignée
Ciblage publicitaire, statistiques de navigation et affichage des cartes (Google Maps)
Youtube
Facebook
Ciblage publicitaire et statistiques de navigation
Partage social

N'oubliez pas de cliquer sur le bouton "Enregistrer" pour valider votre choix

Enregister mes choix
Cabinet Bedin Immobilier