image/svg+xml Maison A Vendre Bordeaux T3 2 chambres | Maison Sacré Coeur. Voici

Achat Maison T3 Bordeaux 2 chambres

AMEDEE SAINT GERMAIN

Réf: 29-2014

  • 57,0 m²
  • 3 pièces
  • 2 chambres

307 400 € *

Cabinet Bedin Immobilier
BX NANSOUTY

1 place Nansouty 33000 Bordeaux

Description

Maison Sacré Coeur

Maison Sacré Coeur.
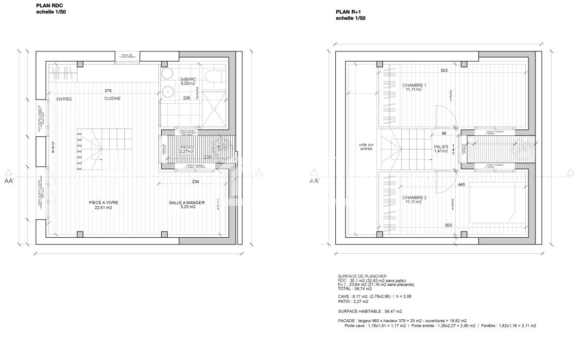
Voici une adorable maison située dans le quartier Sacré Cœur et entièrement rénovée. Un cocon lumineux au calme comprenant une jolie pièce de vie et une cuisine aménagée communicante, une grande salle d'eau, le tout agencé autour d'un patio. A l'étage vous trouverez deux jolies chambres et rangements bénéficiant de la lumière du patio. Accès rapide à tous les commerces de la barrière de Bègles, bus et Gare Saint Jean.


Les informations sur les risques auxquels ce bien est exposé sont disponibles sur le site Géorisques : www.georisques.gouv.fr

En détail

  • Surface terrain : 45,0 m²
  • Cave : 8,2 m²
  • Chambre : 11,1 m²
  • Chambre 2 : 11,1 m²
  • Cuisine/séjour/salon : 27,8 m²
  • Entrée : Oui
  • Palier : 1,4 m²
  • Patio : Oui
  • Salle d'eau / WC : 5,0 m²
  • Taxe foncière : 1 140,00 €
  • Surfaces approximatives ; Document non contractuel

Cabinet Bedin Immobilier

Notre agence à Bx nansouty


Le Cabinet Bedin vous propose un réseau d'agences immobilières sur Bordeaux et sa métropole, rive gauche ainsi que rive droite, et partout en gironde.



Découvrir les biens

Plan de financement

Taux Premier

Mensualités :

Diagnostic énergétique

DPE

Montant estimé des dépenses annuelles d’énergie pour un usage standard : entre 734 et 992 Euros/an (année de référence 2022)

Voici une adorable maison située dans le quartier Sacré Cœur et entièrement rénovée. Un cocon lumineux au calme comprenant une jolie pièce de vie et une cuisine aménagée communicante, une grande salle d'eau agencée autour d'un patio. A l'étage vous trouverez deux jolies chambres et rangements bénéficiant de la lumière du patio. Accès rapide à tous les commerces de la barrière de Bègles, bus et Gare Saint Jean.
Cette annonce immobilière correspond à des personnes en recherche maison Bordeaux. Ce bien immobilier propose une surface de 57 m². Cette maison construite sur un terrain de 45 m² dispose de 2 chambres. Dans le détail, cette Maison comprend les pièces ou éléments suivants: cave de 8.2 m² , chambre de 11.1 m² , chambre de 11.1 m² , cuisine sejour salon de 27.8 m² , entree de m² , palier de 1.4 m² , patio de m² , salle d'eau toilettes de 5.0 m²

Le quartier Nansouty *

Nansouty est un quartier de 21 335 habitants de la ville de Bordeaux dont 56 % des habitants sont propriétaires. Nansouty est un quartier avec 35 % de maisons et 65 % d'appartements.

Biens similaires à vos critères

Achat Maison 4 pieces Bordeaux 2 chambres
OFFRE D'ACHAT FAITE
Exclusivité
1 vidéo

Achat Maison 4 pieces Bordeaux 2 chambres

BORDEAUX NANSOUTY

Réf: 19-3075

399 400 €

OFFRE D'ACHAT FAITE

Achat Maison 4 pieces Bordeaux 2 chambres
Vente Maison 6 pieces Bordeaux 2 chambres
Partenaire

Vente Maison 6 pieces Bordeaux 2 chambres

BORDEAUX GARE ST JEAN

Réf: 1-20543

423 000 €

Vente Maison 6 pieces Bordeaux 2 chambres
Achat Maison 4 pièces Bordeaux 2 chambres
Exclusivité

Achat Maison 4 pièces Bordeaux 2 chambres

BORDEAUX BARRIERE DE BEGLES

Réf: 32-1998

443 700 €

Achat Maison 4 pièces Bordeaux 2 chambres

Certaines fonctionnalités de ce site s’appuient sur des services proposés par des sites tiers. Ces fonctionnalités déposent des cookies permettant notamment à ces sites de tracer votre navigation. Ces cookies ne sont déposés que si vous donnez votre accord. Vous pouvez vous informer sur la nature des cookies déposés, les accepter ou les refuser.

Veuillez noter que GoogleAnalytics est intégré par défaut (outil de statistiques de navigation), cependant, sans votre consentement sur le Cookie "Google", votre IP est anonymisée.

Cabinet Bedin
En cas de refus, le site ne fonctionnera pas de manière optimale :
  • - Possibilité de mettre des annonces en favoris
  • - Utilisation du processus d'estimation avec l'enregistrement de l'adresse renseignée
Ciblage publicitaire, statistiques de navigation et affichage des cartes (Google Maps)
Youtube
Facebook
Ciblage publicitaire et statistiques de navigation
Partage social

N'oubliez pas de cliquer sur le bouton "Enregistrer" pour valider votre choix

Enregister mes choix
Cabinet Bedin Immobilier